Подводка электросети
Данный этап работы довольно сложен, поэтому при отсутствии опыта воспользуйтесь услугами квалифицированных электриков. Помните: с электричеством шутки плохи, любая ошибка может стоить вам жизни. Если вы уверены в своих силах, перед тем как приступить к работе, еще раз прочтите основные правила проводки электросети в помещениях.
Схема подключения посудомоечной машины к электросети
Как видно из рисунка, электропроводка к ПММ должна быть протянута от входного электрощита отдельной линией. В электрощите необходимо разместить устройство защитного отключения (далее также – УЗО) и автомат на 16 А, отключающий электросеть при аварийной ситуации. Вместо двух данных устройств можно установить дифференциальный автомат с параметрами, указанными выше.
Оптимальная схема расположения розеток на кухне с учетом подключения ПММ и стиральной машины
Если в квартире уже сделан ремонт, можно не портить стены штроблением. Проложите кабель-каналы по стене, затем зафиксируйте в них кабель и закройте короба. Такая проводка не испортит интерьер (см. фото ниже).
Проводка электросети в кабель-каналах
Подключение встраиваемой посудомоечной машины
Многие работы можно сделать самому. Но есть такие, которые должны выполнять специалисты, обладающие опытом и разрешением на их проведение. Это касается работ, связанных с электричеством: проведение кабеля и установка розетки.
Установка на подготовленное место
Перед тем как установить посудомоечную машину в готовую кухню, надо убедиться, что удастся без труда уместить ее в подготовленное место, а сбоку либо сзади останется участок для шлангов. Сначала технику ставят напротив подготовленного отделения. Шланги, которые в нее вмонтированы, через отверстия протягивают к месту канализации и водоснабжения, а шнур питания – к розетке. Далее устанавливают прибор в выбранное место, перед этим следует удостовериться, что длины шлангов и шнура достаточно.
Установку выполняют согласно прилагаемой пошаговой инструкции конкретной модели. Также можно почитать форумы и посмотреть видео. Последовательно закрепляют детали, входящие в комплект:
- наклеивают парозащитную пленку;
- по краям фиксируют герметизационную ленту;
- монтируют демпферные элементы.
Если корпус посудомоечной машины расположен неровно, исправляют, регулируя высоту ножек. Некоторые производители техники, например, Электролюкс, Бош и другие, к набору прилагают шумовую защиту, которую надо закрепить на нижней части. В конце дверцу аппарата закрывают фасадом или специальной декоративной накладкой. Подгоняют лицевые части и укрепляют, используя саморезы.
Подключение электрического питания
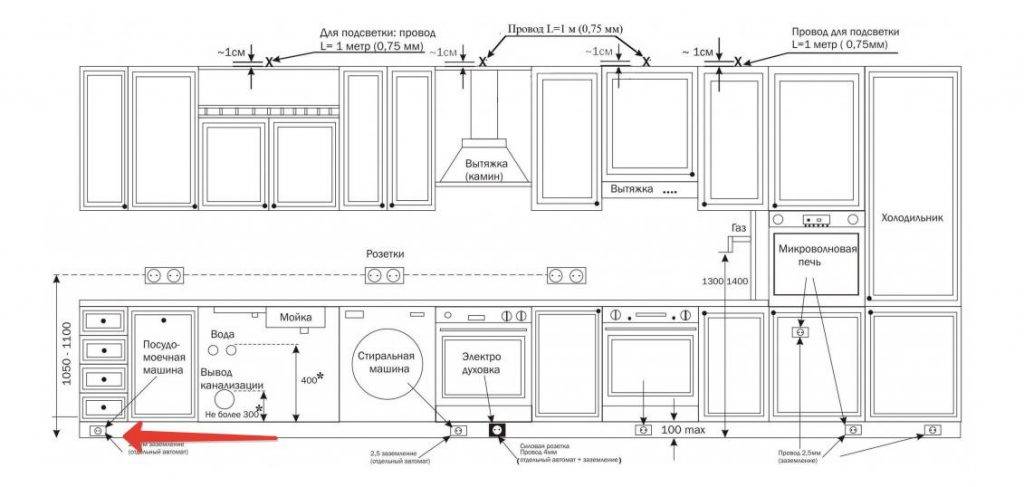
Нельзя протягивать сетевой фильтр, поэтому прибор подключают к самой близкой точке питания. Шнур имеет стандартную длину – примерно 1.5 м, поэтому и розетка должна располагаться не дальше этого расстояния. Применять удлинители нельзя, потому что они не смогут выдержать нагрузки, оплавятся. Запрещается использовать общие розетки, в которые включены другие приборы. Лучше всего для посудомойки отвести отдельную точку, применять заземленные розетки с отдельным пакетником. Последний служит для защиты от замыканий и перегрузки сети. Сооружать электроточку на близком расстоянии от пола нельзя, если случится затопление, произойдет короткое замыкание. Расстояние от пола до того места, где расположена машина, должно быть больше 25 см.
Подключение к канализации
Чтобы ПММ сливала использованную воду, ее подсоединяют к канализационной системе. Существует несколько методов. Первый способ – подсоединить к системе слива мойки. При невозможности закрепить шланг напрямую к канализационной трубе, его монтируют именно таким образом. В этом случае необходимо поменять сифон, поэтому вариант считается затратным и трудоемким.
Другой метод очень простой. Он заключается в монтаже шланга от посудомоечной машины к манжете отвода канализационной трубы. Для фиксации используют специальную ленту, которая обеспечивает отличную герметизацию. Этот метод применяют, если под раковиной есть свободное отверстие.
Соединение с водопроводом
Большинство моделей можно подсоединять к горячей воде, но специалисты не советуют этого делать, потому что она не отличается хорошим качеством. Это отрицательно скажется как на здоровье людей, так и на самом приборе, который быстрее выйдет из строя. Перед подключением к водопроводу на стояке перекрывают воду. Для вмонтирования тройника откручивают шланг смесителя. Смеситель устанавливают к одному из входов разветвителя, к другому – очищающий фильтр. Монтируют шаровой кран запорного типа. К крану подсоединяют шланг, который идет от посудомойки. Стыки заматывают специальной лентой. Она препятствует протеканию воды.
Монтаж «фасада»
Лицевую сторону встраиваемой посудомоечной машины обязательно прикрывают панелью. Что касается фасада, он должен быть выполнен в соответствии с дизайном комнаты. В комплект к такой бытовой технике поставляют специальный фиксаторный элемент и лекало, которые необходимы для установки панели. Ее в основном изготавливают на заказ. Работу по монтажу фасада можно легко выполнить самостоятельно. Берут бумажный лист, на нем отмечают все нужные места и зоны, где предстоит установить фиксаторы. Этот макет прикладывают к передней дверце, делают разметку декоративной панели. Необходимые места намечают, используя обычное шило.
Затем бумажный лист снимают, сверлят отверстия под саморезы. В положенных местах устанавливают ручку фронтальной дверцы и фиксаторы. Данное руководство подходит для установки фасадов фронтальных частей любых размеров. После того как панель будет собрана, ее ставят на место. На дверце посудомойки фиксируют декоративный элемент и вкручивают подготовленные саморезы.
Подключение встраиваемой посудомоечной машины
Многие работы можно сделать самому. Но есть такие, которые должны выполнять специалисты, обладающие опытом и разрешением на их проведение. Это касается работ, связанных с электричеством: проведение кабеля и установка розетки.
Установка на подготовленное место
Перед тем как установить посудомоечную машину в готовую кухню, надо убедиться, что удастся без труда уместить ее в подготовленное место, а сбоку либо сзади останется участок для шлангов. Сначала технику ставят напротив подготовленного отделения. Шланги, которые в нее вмонтированы, через отверстия протягивают к месту канализации и водоснабжения, а шнур питания – к розетке. Далее устанавливают прибор в выбранное место, перед этим следует удостовериться, что длины шлангов и шнура достаточно.
Установку выполняют согласно прилагаемой пошаговой инструкции конкретной модели. Также можно почитать форумы и посмотреть видео. Последовательно закрепляют детали, входящие в комплект:
- наклеивают парозащитную пленку;
- по краям фиксируют герметизационную ленту;
- монтируют демпферные элементы.
Если корпус посудомоечной машины расположен неровно, исправляют, регулируя высоту ножек. Некоторые производители техники, например, Электролюкс, Бош и другие, к набору прилагают шумовую защиту, которую надо закрепить на нижней части. В конце дверцу аппарата закрывают фасадом или специальной декоративной накладкой. Подгоняют лицевые части и укрепляют, используя саморезы.
Подключение электрического питания

Нельзя протягивать сетевой фильтр, поэтому прибор подключают к самой близкой точке питания. Шнур имеет стандартную длину – примерно 1.5 м, поэтому и розетка должна располагаться не дальше этого расстояния. Применять удлинители нельзя, потому что они не смогут выдержать нагрузки, оплавятся. Запрещается использовать общие розетки, в которые включены другие приборы. Лучше всего для посудомойки отвести отдельную точку, применять заземленные розетки с отдельным пакетником. Последний служит для защиты от замыканий и перегрузки сети. Сооружать электроточку на близком расстоянии от пола нельзя, если случится затопление, произойдет короткое замыкание. Расстояние от пола до того места, где расположена машина, должно быть больше 25 см.
Подключение к канализации

Чтобы ПММ сливала использованную воду, ее подсоединяют к канализационной системе. Существует несколько методов. Первый способ – подсоединить к системе слива мойки. При невозможности закрепить шланг напрямую к канализационной трубе, его монтируют именно таким образом. В этом случае необходимо поменять сифон, поэтому вариант считается затратным и трудоемким.
Другой метод очень простой. Он заключается в монтаже шланга от посудомоечной машины к манжете отвода канализационной трубы. Для фиксации используют специальную ленту, которая обеспечивает отличную герметизацию. Этот метод применяют, если под раковиной есть свободное отверстие.
Соединение с водопроводом

Большинство моделей можно подсоединять к горячей воде, но специалисты не советуют этого делать, потому что она не отличается хорошим качеством. Это отрицательно скажется как на здоровье людей, так и на самом приборе, который быстрее выйдет из строя. Перед подключением к водопроводу на стояке перекрывают воду. Для вмонтирования тройника откручивают шланг смесителя. Смеситель устанавливают к одному из входов разветвителя, к другому – очищающий фильтр. Монтируют шаровой кран запорного типа. К крану подсоединяют шланг, который идет от посудомойки. Стыки заматывают специальной лентой. Она препятствует протеканию воды.
Монтаж «фасада»

Лицевую сторону встраиваемой посудомоечной машины обязательно прикрывают панелью. Что касается фасада, он должен быть выполнен в соответствии с дизайном комнаты. В комплект к такой бытовой технике поставляют специальный фиксаторный элемент и лекало, которые необходимы для установки панели. Ее в основном изготавливают на заказ. Работу по монтажу фасада можно легко выполнить самостоятельно. Берут бумажный лист, на нем отмечают все нужные места и зоны, где предстоит установить фиксаторы. Этот макет прикладывают к передней дверце, делают разметку декоративной панели. Необходимые места намечают, используя обычное шило.
Затем бумажный лист снимают, сверлят отверстия под саморезы. В положенных местах устанавливают ручку фронтальной дверцы и фиксаторы. Данное руководство подходит для установки фасадов фронтальных частей любых размеров. После того как панель будет собрана, ее ставят на место. На дверце посудомойки фиксируют декоративный элемент и вкручивают подготовленные саморезы.
Видео
В видеосюжете рассказано, как рассчитать размеры ниши под посудомойку:
Об авторе:
Инженер-электронщик с многолетним опытом работы. Несколько лет занимался организацией ремонта бытовой техники, в том числе стиральных машин. Обожает спортивную рыбалку, водный туризм и путешествия.
Нашли ошибку? Выделите её и нажмите кнопки:
Ctrl + Enter
Интересно!
В XIX веке на стирку дамских туалетов уходила масса времени. Платья предварительно распарывали, а затем стирали и сушили каждую часть отдельно, чтобы ткань не деформировалась. После стирки одежду сшивали заново.
Выбор места с учетом способа установки
Чем раньше вы задумаетесь о приобретении техники, тем меньше хлопот будет при дальнейшем благоустройстве кухни.
Идеальный вариант – комплексный ремонт, включающий в себя:
- составление проекта;
- прокладку труб водопровода и канализации;
- проведение отдельных электролиний для мощных агрегатов;
- отделку помещения;
- установку мебели и техники.
В этом случае риски того, что не хватит ниши для посудомойки или не подойдут ее размеры, сводится к нулю. Стены с выведенными разъемами для подключения выглядят аккуратно, требования техники безопасности соблюдены.
Современная кухня представляет собой помещение, заполненное большим количеством крупной и мелкой бытовой техники. Составление проекта помогает правильно расположить как сами приборы, так и места подключения – розетки
Место монтажа зависит от типа машины, соответственно, от способа ее установки.
Все устройства принято делить на две категории:
- отдельностоящие, переносные, представляющие собой мобильный агрегат;
- встраиваемые, стационарные, для монтажа которых необходим шкаф.
Для правильной установки размер посудомоечной машины также имеет большое значение. Выделяют подкатегорию компактных машин, с уменьшенными габаритами.
Среди них есть как отдельностоящие приборы, предназначенные для установки на столешницу или в нишу шкафа, так и встраиваемые.
Варианты расположения посудомоек:
Продумать, как и куда установить посудомоечную машину, нужно заранее. Главным образом следует грамотно расположить агрегат относительно коммуникаций – максимально приблизить его к трубам.
Рекомендуем также в зоне доступности вмонтировать шкафы для посуды и прочей утвари, которая предназначена для мойки в ПММ.
Процесс уборки пройдет гораздо быстрее, если очистка тарелок от крупных кусков, загрузка посуды в лотки посудомойки, выкладывание чистой посуды на полки произойдет с одного и того же места.
Дополнительные работы
При необходимости в стенках шкафов высверливают отверстия для сливного и подающего воду шлангов, шнура питания.
Монтаж «фасада»
Лицевая сторона дверей всех встраиваемых посудомоечных машин для соответствия дизайну, интерьеру и цвету кухни, закрывается сделанной по предварительному заказу панелью необходимого размера. Для ее крепления к дверце машины в комплект поставки входит специальный крепеж и дается лекало.

Изготовить индивидуальную лицевую панель, не так уж сложно, но интерьер помещения будет выглядеть аккуратным
На большом листе бумаги нанесены необходимые чертежи и отмечены точки крепления деталей к декоративной панели, лист прикладывается к ней и с помощью острого шила точки переносятся на панель, после чего саморезами в отмеченные места прикручивается крепеж и ручка двери. Затем панель закрепляется на дверцах машины и прикручивается к ней саморезами сквозь отверстия по периметру дверей.
Защита столешницы
Перед тем, как встроить посудомоечную машину под столешницу, необходимо обратить внимание на следующее. Все посудомойки имеют не очень хорошую конструктивную особенность — при открывании дверей пар и влага от машины подымаются вверх и попадают на нижнюю поверхность столешницы, портя ее

Некоторые производители создают защиту от пара и влаги
Если в комплекте не предусмотрена специальная защита столешницы, следует позаботиться об этом самим. Можно использовать для защиты специальный скотч, пластик, металл и т. п.
В моделях «Bosch» под столешницу перед установкой машины крепится специальная металлическая пластина, в «Electrolux» — наклеивается пленка из специального материала.

Подгонка нужной высоты
Окончательная установка состоит в подгонке машины под столешницу с помощью передних и задних ножек и выставления ее по уровню. Затем между боковыми стенками шкафчика и машины вставляются необходимые прокладки и стенки крепятся друг к другу. Демонтированная нижняя декоративная панель в случае необходимости обрезается и ставится на место.
Совет:
Правила установки посудомоечных машин требуют соблюдения зазора между задней стенкой машины и кухонной стены не менее 50 мм.
Встроить посудомоечную машину в готовую кухню по силам любому хозяину, желающему сэкономить средства, для этого не обязательно вызывать высококвалифицированных специалистов. Узнать, как правильно провести работы и не допустить досадных ошибок можно из этой статьи.

Подготовка инструментов и материалов
Чтобы работа не разочаровала и принесла только удовольствие, следует правильно к ней подготовиться, подобрать нужные инструменты и материалы. Для этого подойдут следующие приспособления и рабочие средства:
- Шуруповерт. Незаменимое электрическое устройство для того, чтобы быстро раскрутить или вкрутить винты, шурупы. Также с его помощью можно проделывать отверстия для будущих креплений.
- Дрель. Используют, если в наличии нет шуроповерта. Она также необходима для сверления, помогает выполнить отверстия в панели. Диаметр сверла подбирают соответственно диаметру саморезов.
- Рулетка. Она нужна для того, чтобы правильно выполнить какие-либо измерения, убедиться в правильности действий.
- Отвертки. Без этого нужно инструмент не обойтись. Характеристики и назначение инструмента зависят от типа крепежных элементов, которые нужно зафиксировать.
- Шило. Иногда необходимо прокалывать аккуратные отверстия в непрочных материалах, для этого целесообразно использовать острый прочный предмет.
- Карандаш. Используем тогда, когда нужно отметить места для просверливания крепежных отверстий.
- Трафарет. Это очень удобное приспособление в виде большого листа, которое поможет правильно пометить места для установки крепежей. Для этого нужно всего лишь наложить его на панель и отметить точки при помощи карандаша.
- Двусторонний скотч. Помогает зафиксировать фасад и основную поверхность до момента их прикручивания посредством шурупов. Специалисты рекомендуют осуществлять предварительную «примерку», так как ошибка в несколько миллиметров может привести к плачевным последствиям.
Если накладка изготовлена своими руками, тогда может понадобиться наждачная бумага для шлифования поверхности, антисептик для пропитки и краска для нанесения на торцы или на всю поверхность фасада.
Соседство: опасное и не очень
Правильная установка любой бытовой техники гарантирует ее долгую и бесперебойную эксплуатацию
Поэтому важно обращать внимание на советы производителей и специалистов, чтобы ваши механические помощники работали эффективно и долгосрочно. Рассмотрим несколько из рекомендаций
Совет 1. Встраиваемую посудомойку не советуют устанавливать с самого края кухонного гарнитура как его продолжение, иначе вам придется дозаказывать у мебельщиков детали корпуса и столешницу.
Совет 2. Посудомоечную машину надо ставить подальше от любых источников тепла, будь то батарея отопления, духовой шкаф или варочная поверхность. Рекомендованное расстояние от духовки должно быть не менее 40 см, некоторые производители даже указывают это в инструкции к установке. Несоблюдение этого правила грозит отказом сервисного центра в гарантийном ремонте.

Посудомоечная машина должна устанавливаться на конкретное место в кухне, с учетом расположения остальных встроенных агрегатов
Кроме того, от излишнего тепла машина будет перегреваться, что скажется на качестве уплотнителей, которые очень быстро высохнут и станут негодными к использованию. Если, все-таки габариты вашей кухни не позволяют установить технику на необходимом расстоянии друг от друга, то проложите между приборами лист фольгированного полиэтилена.
Совет 3. Нежелательно ставить посудомоечную технику вплотную к стиральной машинке. Во время цикла стирки и отжима стиральная машина довольно сильно вибрирует и ударяется о соседние предметы, что довольно для них губительно.
Хуже только если вы включите два прибора одновременно. Вибрация одного прибора, передаваясь другому, в состоянии разбить хрупкую посуду, находящуюся внутри камеры мойки.

Посудомойка не должна стоять рядом с машинкой, последняя может нанести ей солидный вред
Совет 4. Не хорошее влияние на бытовую технику оказывает и, казалось бы, безобидная микроволновая печь. Электромагнитные волны, которые она излучает, могут оказать негативное воздействие на электронный блок стиральных и посудомоечных машин. В идеале печь вообще лучше вешать на специальные кронштейны, которые крепятся к стене или ставить на расстоянии не менее 50 см от любых бытовых приборов, но это не всегда представляется возможным.
Совет 5. Посудомойка спокойно перенесет соседство с морозильной камерой и холодильником. Он не сильно нагревается и очень слабо вибрирует, что никак не сказывается на работе рядом стоящей техники.

А вот рядом с холодильником интересующий нас аппарат поставить можно, так как для него это будет полностью безопасное соседство
Внимательно читайте инструкцию
Рассказ о том, как установить посудомоечную машину(ПММ), предварим банальным, но важным утверждением: обязательный документ для установщика, который необходимо изучить самым внимательным образом перед началом работ — инструкция по монтажу.Посудомоечная машина должна быть подключена к водопроводу, канализации и электропитанию соответственно требованиям производителя. Большинство современных посудомоек бытового уровня подключаются по схожим схемам, но машины разных типов и марок имеют свои особенности, которые необходимо учитывать как при их установке, так и при эксплуатации.
Если подготовка к установке ПММ осуществляется на стадии ремонта кухни, когда ещё неизвестно, какая конкретно модель будет выбрана, желательно предварительно определиться с типом машины. В первую очередь с её габаритами и видом водоснабжения. Конечно, всегда можно по месту что-то переделать, но это лишние затраты времени и денег.
Всегда изучайте инструкции по монтажу и эксплуатации сложной бытовой техники, там содержится вся необходимая информация
Условия установки посудомойки
Прежде чем принимать решение о приобретении посудомоечной машины, определитесь с местом и возможностью ее установки.
Гораздо легче эта задача решается с отдельно стоящими модификациями. Для них потребуется совсем немного свободной площади на любой из столешниц рабочей зоны кухни, на подоконнике и даже на полу. Встраиваемая модель устанавливается лишь в специально подготовленной нише.
Неоспоримое преимущество встраиваемых моделей — это высокая гигиеничность, пониженный уровень шума, отсутствие видимости корпуса агрегата, шлангов и проводов. Все это делает такие посудомойки более предпочтительными. Идеально использовать кухонные гарнитуры с готовым шкафчиком для установки посудомоечной машины. В противном случае подходящее место придется обеспечивать самим.

Для этого сначала надо выяснить точные габариты основных моделей, предлагаемых торговыми предприятиями. Такая информация представлена в рекламных буклетах и проспектах, на сайтах магазинов, либо на ценниках в торговом зале.
Далее с помощью рулетки производят замеры всех шкафов, других предметов мебели на кухне. Учитывают любое свободное пространство, например между шкафами, между шкафом и холодильником и так далее. По результатам этих исследований выбирают модель машины по ее размерным признакам.
Посудомоечные машины известных производителей чаще имеют ширину 60 см и реже 45 см (узкие модели). Узкие модели имеют высоту от 82 до 88 см, что соответствует стандартной высоте кухонных столов. Глубина всех машин — 55 см, что обеспечивает возможность подключения коммуникаций к штуцерам и разъемам, расположенным на задней стенке.
Наличие свободных точек подключения коммуникаций или возможности параллельного ввода учитывают на следующем этапе подготовки установочного места.
Для подключения потребуется наличие:
- трубы холодного водоснабжения;
- канализационной трубы;
- электрической розетки с заземляющей клеммой.
Если электрический кабель при необходимости подводится без особых усилий, то с водопроводной и водоотводящей трубами уже сложнее. По этой причине место установки выбирают рядом с мойкой. Возможность оборудования стояков тройниковыми фитингами решит проблему подключения быстро и с минимальными затратами.
Выбор места в зависимости от вида
Чтобы встроить прибор, нужно правильно определиться с местом расположения техники: проем секции должен соответствовать габаритам коробы машины, средства коммуникации расположены недалеко. Специалисты предлагают несколько вариантов:
| Тип техники | Место для посудомоечной машины | Преимущества | Недостатки |
| Частично встраиваемые и полновстраиваемые | Под раковиной в мойке | Совпадает глубина и ширина многих моделей; близость к канализационным водным коммуникациям | Может понадобиться переделка нижней части мойки; покупка нового сифона |
| Напольный шкаф | Панель прибора скрывается за декоративным фасадом | Необходимость переделывания элемента мебели | |
| Демонтаж ниши в кухонном гарнитуре | Подбор панели под цвет фасада мебели | Уменьшение пространства для хранения кухонной посуды | |
| Компактные модели | На отдельно стоящий бытовой прибор | Легкий монтаж | Необходимость учитывать доступ к коммуникациям; техника уменьшает пространство в помещении |
Таким образом, в готовую кухню проще всего вписать компактные модели.

Рекомендации для правильной установки
Чтобы правильно поставить ПММ (посудомоечную машину), соблюдайте правила:
- Встраиваем посудомойку рядом со всеми коммуникациями.
- Проверяем, сделано ли заземление.
- Под столешницу устанавливаем пластинку из металла, чтобы защитить оборудование от пара и предотвратить деформацию.
- Перед установкой проверяем все неровности.
- Не устанавливаем устройство под варочной поверхностью.
- Правильно подводим воду. Устанавливаем на клапан запорный кран, тройник для отвода воды или гибкую проводку на тройнике с угловым краном.
- Сливной шланг не должен быть больше 1,5 м. Насос может быстро сломаться из-за большой нагрузки.
- Чтобы избежать неприятного запаха и сырости, сливную систему делаем с герметичным прямым сливом.
- Чтобы двигатель не сгорел, от посудомойки к щитку проводим отдельную линию с выключателем.
- Проверяем посудомоечную машину, не заливая воду.

























































