Макет каркасного дома
Приведём перечень чертежей каркасных домов и коттеджей, которые входят в типовой проект для каркасного строительства. Что содержит архитектурная часть проекта.
Рисунок фасада и торца готового дома с указанием его размеров, высоты фундамента, крыльца, оконных и дверных проёмов, свеса кровли.
Рабочие рисунки фасада.
Чертежи-планы каждого этажа. В них указывается расположение простенков, ширина оконных и дверных проёмов, размеры каждой комнаты, а также расположение бытовых устройств, приборов, некоторых предметов мебели.
План этажей в доме своими руками.
Рисунок – вертикальный разрез дома. На примере детально расписаны размеры этажей и междуэтажных перекрытий, высота внутренних дверей, планируемое расположение мебели на этаже.
Каркасный дом в разрезе.
Подробное описание оконных и дверных проёмов приводится в отдельной спецификации, которая имеет вид таблицы.
Конструктивный раздел проекта содержит:
- Чертёж-проект фундамента.
- Чертежи стен и балок пола перекрытия.
- Проект–чертёж стропильной системы для сооружения крыши.
- Чертежи узлов каркасного дома.
- Чертёж-проект обшивки стен и пола.
На заметку
Фото чертежей каркасных домов позволяют оценить полноту информации, которая изложена в проекте. И сделать выбор – стоит ли приобретать данный проект или в нём не содержится ценных сведений.
Полезные мелочи
Самому сделать план дома можно, но по получившемуся результату не стоит сразу приступать к строительству.
Хорошо бы, перед тем как самому проектировать дом, узнать все о нормах и правилах возведения жилых зданий. Почитать об этом можно здесь.

При проектировании даже маленького домика, соблюдайте основные правила и требования. Иначе здание нельзя будет эксплуатировать и даже построить
После составления проекта дома на компьютере распечатайте его и отнесите архитектору. Если среди ваших друзей и родственников таких специалистов нет, вам прямая дорога в БТИ – бюро технической инвентаризации. Сдайте макет туда. Сотрудники ведомства оценят ваш чертеж и дадут (или не дадут) разрешение на строительство.
Помните, создание проекта должно отвечать следующим принципам:
- план дома должен быть простым. Если вы хотите возвести оригинальное и неповторимое строение со множеством этажей, балконами и прочими сложными архитектурными элементами, обратитесь за помощью к профессионалам;
- проект строения должен отвечать требованиям эстетики и морали;
- перед тем как спроектировать дом самостоятельно на компьютере, определитесь с фундаментом. Электронные площадки его не предусматривают.

Еще до проектирования дома определитесь с фундаментом здания. Основа подарит строению прочность и надежность
Создание плана дома
Перед тем как сделать планировку определяемся с количеством и размером необходимых помещений, чтобы представлять себе общую площадь дома и решить, сколько делать этажей. Полученную цифру нужно умножить на коэффициент 1,25, который учитывает толщину наружных и внутренних стен и перегородок. И получаем площадь застройки по внешнему периметру.
Затем подбираем оптимальную длину и ширину наружных стен исходя из требований к размещению на участке и вида строительных материалов. Например, если решено строить дом из бруса, стоит иметь в виду стандартную длину этого пиломатериала – 6 метров. Чтобы не было лишних обрезков и, соответственно, расходов, логично было бы выбрать такие параметры дома, чтобы они были кратны половине длины бруса: 6, 9, 12, 15 метров.
Приведём пример. Если общая площадь застройки составила 180 м2, а ширина дома по фасаду не должна превышать 14 м, то её можно уменьшить до 12 м, длина при этом составит: 180 : 12 = 15 м.
Компьютерные программы проектирования домов: надежные помощники в создании проектов
Современные компьютерные технологии позволяют быстро визуализировать все желания и изобразить дом своей мечты. Более того, благодаря специальным программам можно самостоятельно осуществлять 3Д-проектирование дома. Даже неопытные пользователи смогут это сделать с помощью, например, Google SketchUp. В этом сервисе можно спроектировать как жилые, так и хозяйственные помещения.
Проекты двухэтажных домов с гаражом: особенности современных проектов (прочитать подробнее)
С помощью онлайн-планировки дома прямо в браузере можно создавать модели построек с указанием точных размеров и даже текстуры материалов. Программы офлайн предполагают скачивание и установку на ПК, поэтому компьютер должен иметь достаточный объем оперативной памяти.
Конструктор домов позволяет с помощью отдельных образцов и деталей спроектировать виртуальный шикарный коттедж или маленький загородный домик. Такие программы дают возможность не только конструировать разные модели, но и составить список материалов и деталей, необходимых для приобретения, и даже вычислить приблизительную стоимость проекта.
С помощью компьютерных программ можно легко спроектировать дом самостоятельно.
Среди популярных электронных продуктов следует назвать такие, как AutoCAD и КОМПАС-3D. Это универсальные программы, которые можно применять для создания проектов домов и интерьеров. Их главный недостаток – высокая цена. К более дешевым, но менее функциональным относится Ashampoo Home Designer – это идеальный выбор для новичков в проектировочном деле.
Чертежи частных домов являются основным элементом в строительном проекте. От их правильного выполнения зависит не только надежность самой конструкции, но и продолжительность службы коммуникаций и систем обеспечения жилища, что делает его долговечным, комфортным и уютным для проживания семьи. Поэтому подходить к вопросу создания чертежей следует максимально внимательно и ответственно.
Проекты домов из пеноблоков: достоинства и недостатки (прочитать подробнее)
Можно ли сделать рабочий проект самому?
Можно, но без должного опыта и образования, вы точно что-нибудь упустите. Если вы не хотите, чтобы в процессе строительства возникали все новые и новые нюансы, и не приходилось переделывать и перестраивать заново различные конструкции вашего дома – разработка рабочего проекта должна проводиться квалифицированными специалистами.
Приобретая рабочий проект для своего дома, вы получаете результат громадного опыта, знаний и творческой мысли, который позволит значительно сэкономить на строительстве дома, так как каждый конструктивный элемент продумывается до мелочей, и у строителей просто не останется права на ошибку. В соответствии с вашими пожеланиями и спецификой объекта, объем документации может быть расширен и дополнен.
Особенности составления проектов домов: чертежи как основная часть планирования
Определившись с планировкой дома, нужно мысленно представить жизнь семьи в здании, продумать все элементы, чтобы ничего не упустить. Поэтому не стоит спешить с созданием окончательного варианта планировки дома. Готовые чертежи и планы дома должны быть максимально совершенны, чтобы конечный результат удовлетворял всех домочадцев, а построенное жилище прослужило максимальное количество лет без реконструкции и переделок. Конечный вариант эскиза стоит обсудить на семейном совете, учитывая при этом все детали, вплоть до мелочей.
В первую очередь в схеме дома указывают желаемое количество этажей. Это может быть просторный одноэтажный дом, компактный двухэтажный коттедж или роскошный особняк в два яруса с мансардой. Внутренняя планировка, изображаемая на чертежах зданий, должна включать такие зоны:
- жилые комнаты;
- хозяйственные помещения;
- зоны общего пользования;
- дополнительные пристройки.
Одноэтажный дом разграничивают на зоны с помощью перегородок, а также размещая помещения однотипной функциональности в одном крыле. В двухэтажных коттеджах спальни, гостевые и детские комнаты традиционно располагаются на втором этаже, а на первом находятся хозяйственные и служебные помещения общего пользования.
Строительство дома своими руками
Небольшой каркасный дом — это быстровозводимая и легкая конструкция. Поэтому каждый желающий сможет самостоятельно построить его без использования фундамента. Но давайте рассмотрим подробную инструкцию, которая позволит построить своими руками дом:
Сначала нужно определиться с тем, какое будет основание у постройки. Рекомендуется размещать дом на возвышенности. И обязательно необходимо разработать дренажную систему, которая позволит отводить осадки от дома.
Все элементы конструкции — пол, стены, могут быть изготовлены из одного и того же материала. Для строительства стен можно применять обрезные доски 150х25 мм. В том случае, если планируете сделать тонкие стены, учтите, что они не смогут удержать в помещении тепло. Поэтому нужно предусматривать наличие утепления.
Основная часть сборной конструкции — это легкий деревянный каркас. Он должен быть изготовлен из вертикальных и горизонтальных обвязок, все пустоты обязательно заполняются утеплителем, имеющим низкую степень теплопроводности.
Базовая площадка каркасного строения — это его пол. Сначала нужно использовать необрезную доску, так как она является очень дешевой. С ее помощью изготавливаете так называемый черновой пол.
Следующий этап — это укладка поперечных лаг. Пространство между ними также нужно заполнить утеплителем. После проведения всех работ на эти лаги будет осуществляться укладка половых досок. Именно таким образом обустраивается без подвала фундамент дома.
Внизу под брусом необходимо уложить рубероид, всю древесину обработать пропитками, которые предотвращают впитывание влаги.
Обозначьте точное расположение стен относительно пола.
Закрепите брусья при помощи анкерных болтов в 2 метрах друг от друга. Выставьте при помощи уровня правильно геометрию всей конструкции. Не допускается перекос углов по диагонали более чем на 10 мм.
Теперь собираете каркас будущей стены. Сборка должна производиться на ровной и сухой поверхности, чтобы не допустить перекоса. Предварительно нужно заготовить доски, они должны иметь одинаковый размер. Именно размер этих досок будет влиять на высоту потолков. Как правило, для частных домов высота делается примерно 2,75 м
Обратите внимание, что не нужно делать потолки менее чем 2,4 м. В этом случае он будет давить на вас, вследствие чего вы ощутите дискомфорт.
В случае если вы решите обустроить второй этаж или мансарду, вам нужно сделать косые потолки
Кроме того, придется в крышу установить окна. Они смогут дать помещению достаточное количество света, а также увеличить зрительно пространство.
Сборку каркаса можно начинать с изготовления вертикальных перегородок. Между балками должно быть расстояние 40-60 см. Ширина между досками должна выбираться, исходя из того, какой материал будет использоваться для обшивки. Если применяется сайдинг, то необходимо выдерживать расстояние между досками 20-30 см. При использовании ДСП или псевдобруса расстояние должно быть 35-60 см. Стоит отметить, что сайдинг, который используется для обшивки зданий, долговечен и практичен. При эксплуатации нет нужды его обрабатывать пропитками или лаками, как в случае с древесиной.
Чтобы придать зданию индивидуальной внешний вид, можно облицевать его различными отделочными материалами, которые можно встретить на рынке. При сборке стен обязательно предусмотрите окна
Обратите внимание на то, что они должны занимать более 18 % площади стен. Только в таком случае вы сможете обеспечить максимальный комфорт в доме
Рекомендуется использовать в качестве окон двойные стеклопакеты.
Все стены изнутри желательно покрывать гипсокартонным листом. Это универсальный материал, который позволяет сделать стены ровными. на него можно нанести любое покрытие. Но необходимо все коммуникации прокладывать внутри стен. Поэтому сначала выполняете работы по прокладке коммуникаций, а затем можно облицовывать и внутреннюю поверхности. И последний этап — это укладка кровельного материала. Чтобы облегчить кровлю, ее можно сделать из черепицы или ондулина.
Полезные мелочи
Самому сделать план дома можно, но по получившемуся результату не стоит сразу приступать к строительству.
Хорошо бы, перед тем как самому проектировать дом, узнать все о нормах и правилах возведения жилых зданий. Почитать об этом можно здесь.
При проектировании даже маленького домика, соблюдайте основные правила и требования. Иначе здание нельзя будет эксплуатировать и даже построить
После составления проекта дома на компьютере распечатайте его и отнесите архитектору. Если среди ваших друзей и родственников таких специалистов нет, вам прямая дорога в БТИ – бюро технической инвентаризации. Сдайте макет туда. Сотрудники ведомства оценят ваш чертеж и дадут (или не дадут) разрешение на строительство.
Помните, создание проекта должно отвечать следующим принципам:
- план дома должен быть простым. Если вы хотите возвести оригинальное и неповторимое строение со множеством этажей, балконами и прочими сложными архитектурными элементами, обратитесь за помощью к профессионалам;
- проект строения должен отвечать требованиям эстетики и морали;
- перед тем как спроектировать дом самостоятельно на компьютере, определитесь с фундаментом. Электронные площадки его не предусматривают.
Еще до проектирования дома определитесь с фундаментом здания. Основа подарит строению прочность и надежность
Компьютерные программы для проектирования домов
Проектировать дом можно с помощью приложений:
- Google SketchUp,
- VisiCon,
- FloorPlan 3D,
- CyberMotion 3D-Designer 13.0,
- Home Plan Pro,
- AutoCad,
- Дом-3D,
- Envisioneer Express.
Данные инструменты предназначены для моделирования трехмерной архитектуры, в т. ч. одноэтажных и двухэтажных домов, дач, коттеджей. В качестве дополнительной функции программы позволяют производить виртуальную расстановку предметов мебели. Специальные плагины и расширения данных приложений осуществляют визуализацию объектов. Благодаря данной опции можно смотреть, как строения выглядят сверху, в разрезе, под углом. Кроме того, моделирующие приложения позволяют работать со слоями.
Модели можно в любой момент отредактировать, а также покрутить вокруг своей оси или увеличить для просмотра наименьших деталей. Для хранения разных проектов предусмотрены библиотеки, в которых можно быстро и легко просматривать объекты. Современные программы позволяют создавать также динамические элементы. В интернете доступны платные и бесплатные приложения и онлайн-ресурсы для проверки особенностей конструкций при максимально реалистичных параметрах.
Экстерьер частного дома в стиле прованс
Экстерьер домов в стиле прованс отличается внешним видом. Дом должен быть оформлен в светлых тонах.

Дом в стиле провансИсточник best-design-ideas.com
В этом стиле приветствуется контрастное подчеркивание определенных частей фасада, таких как окна, двери и карнизы.

Дизайнерское оформление входа в домИсточник usa.odysseus-nua.com
Экстерьер дома может быть в темных цветах, которые доминируют над светлыми.

Красивый дом в стиле провансИсточник remontbp.com
Стиль прованс характерен тем, что использует разные отделочные материалы. Тут можно сочетать камень и дерево.

Экстерьер в стиле провансИсточник best-design-ideas.com
Окна в стиле прованс очень практичны, имеют красивую конструкцию и большие размеры. В этом случае жалюзи могут послужить для защиты от повреждений и в качестве декора.
Что касается декорации окон, то они оформлены очень просто и без излишеств, преимущественно штукатуркой.

Арка в домеИсточник wellshouse.org
Двери должны быть массивными и иметь большое смотровое окно.

Средиземноморский дизайн домаИсточник pinterest.com
Основным требованием к материалам, используемым для отделки фасада в стиле прованс, чтобы они имитировали старинные здания. Для этих целей можно использовать натуральный камень и дерево.
Чтобы имитировать экстерьеры кирпичных домов, используют гипсовые панели, плиты, которые схожи по цвету и фактуре на камень. Благодаря таким плиткам фасад вашего дома, покрытый таким образом, передаст атмосферу прошлых эпох. В то же время эти материалы являются не очень дорогими.
Выбор материалов и технологии строительства
В зависимости от потребностей к эксплуатационным свойствам постройки, выбираются и строительные материалы.
Для одноэтажного сооружения подойдёт каркас из бревна, сэндвич-панелей. Эстетично выглядит строение из бруса. Запах настоящей древесины полезен для лёгких, приятен. Строители отдают предпочтение брусу 150х150. Следует нанести огнеупорный слой на древесину, чтобы сделать жилище безопасным.
При выборе материала учитывают бюджет, смотрят на грунт, выбирают фундамент, изучают планировку. Для двухэтажных домов подходит газобетон, кирпич, пеноблоки. Это самые дорогие материалы, отличающиеся прочностью, долговечностью. Использование деревянных материалов более экономичный вариант.
Проект включает в себя множество нюансов. Он должен отвечать потребностям хозяев и отражать такие параметры: количество комнат и этажей, наличие или отсутствие коммуникаций, дополнительных сооружений, пристроенных к зданию или находящихся на участке.
Заказ проекта каркасного дома в фирме
При строительстве каркасного дома своими руками чертежи обеспечивают правильность и надёжность строительства. При экономной застройке может встать вопрос о целесообразности вложений денег и стоит ли заказать. Но хочу вас уверить, что без готового проекта построить дом по современной технологии просто невозможно.
Вы не сможете правильно рассчитать нагрузки на все элементы силового каркаса. Только с помощью специальной программы SketchUP проектирования домов делаются расчеты нагрузок, правильной обвязки, количества необходимого материала в формате skp. Вы сможете определиться с планировкой каркасного дома и правильно посчитать площадь всех жилых и нежилых помещений.
Макет дома на заказ несёт достаточно большие затраты, но можно выбрать готовый проект дома или бани. Для начала остановиться на контактах проектировочных фирм с опытом строительства каркасных домов, чтобы они были на рынке не один год. Поискать отзывы об их работе или даже встретиться с теми, кто у них заказывал работу.
В готовом проекте строительства каркасного дома надо обратить внимание на доступность информации, чтобы была четкая инструкция по возведению. Как собирать каркасные дома без дополнительных издержек
Точное количество деревянных материалов, чтобы не сказалось на качестве постройки.
На рисунке каркасного дома.
Cамостоятельное проектирование дома
Перед самостоятельным оформлением схемы здания требуется определить требуемый функционал и подобрать соответствующее программное наполнение
Важно наличие версии интерфейса на русском языке, доступный для навыков пользователя уровень сложности программирования, наличие объемных визуализаций в 3D-формате
Как работать с программным обеспечением?
Перед началом работы требуется ознакомиться с инструкциями, видеоуроками, функционалом интерфейса. Затем поэтапно выполняются шаги, предлагаемые программой, нажимается кнопка для создания нового проекта. Необходимо перейти к разделу моделирования и выбрать конструирование здания, интерьеров, планировочных решений, ландшафтного дизайна.
Краткая оценка
Такие проекты не предназначены для круглогодичного проживания. Технология их строительства и стоимость материалов позволяют свести затраты к минимуму.
Проект двухэтажного сооружения из бюджетных материалов
Показатели площадей здания (м2):
- 77 – первый этаж;
- 48 – второй;
- 23 – гараж;
- 108 – общая.
Особенности:
- Блоки ФБС для фундамента.
- Материал несущих стен – газобетон (утепляется).
- Внутренние перестенки из кирпича.
- Перекрытия создаются из ж/б элементов.
- Сооружение кровли подразумевает закрепление металлочерепицы на деревянные стропила с обрешеткой.
Чертеж расположения комнат
Что входит в эскизный проект
Отдельно стоит рассказать про состав эскизного проекта. Что же вы получаете, заплатив специалистам приличную сумму?
- Пояснительная записка. Здесь содержится копия технического задания, перечень и очередность работ, выполняемых на объекте, оптимальные строительные и отделочные материалы, а также список информационного и программного обеспечения, которое использовалось при составлении эскиза.
- План фасада. Серьезные компании предлагают несколько вариантов фасада, чтобы клиент выбрал именно тот, который в полной мере отвечает всем его требованиям.
- Планы этажей, чердака, варианты обустройства подвала. Площадь и форма каждого помещения, толщина и местоположение перегородок – все это формирует внутренний вид вашего будущего дома.
- Иллюстрации. Изображение дома изнутри и снаружи. Для создания иллюстраций используются специальные программы, позволяющие разработать 3D изображения коттеджа, которые значительно упрощают восприятие и проведение дальнейших работ.
- Чертежи поперечного и продольного разреза здания. Их количество зависит от требований клиента.
- Кровля. Все расчеты по устройству кровли при использовании выбранного заказчиком материала.
- Генплан участка. Общий чертеж земельного участка, вид сверху. Здесь показано расположение как самого дома, так и всех остальных построек.
- Фундамент. Местоположение, форма и размер фундамента, а также расчеты, подтверждающие его необходимость.
Как видите, эскиз здания представляет собой очень сложный комплекс информации, не располагая которой просто нельзя приступать к строительству дома вашей мечты.
Скачать ТОР-10 проектов AutoCAD
1) 5-ти этажный жилой дом (скачать готовые проекты Автокада: АР, КЖ, КМ, кладочный план и т.д.)

Рис. 1 – Скачать проект Автокад “5-ти этажный жилой дом”.
2) Бизнес-центр: планы, фасады, характеристика здания. Скачать готовый проект AutoCAD.

Рис. 2 – Бесплатные проекты в Автокаде “Бизнес-центр”.
3) Монолитное 16-ти этажное здание (дипломный проект в Автокаде). Скачать проект жилого дома в Автокаде.

Рис. 3 – Готовый проект в Автокаде “16-ти этажное монолитное здание”.

Рис. 4 – Дипломный проект AutoCAD “16-ти этажное монолитное здание”.
4) Проект реконструкции в Автокаде административного здания. Скачать рабочие чертежи Автокада.

Рис. 5 – Готовые чертежи проекта AutoCAD “Реконструкция существующего здания администрации”.

Рис. 6 – Проекты домов Автокад. Скачать диплом “Реконструкция существующего здания администрации”.

Рис. 7 – Проект дома в Автокаде скачать “Реконструкция существующего здания администрации”.

Рис. 8 – Проекты/чертежи Автокад. Скачать диплом “Реконструкция существующего здания администрации”.

Рис. 9 – Типовой проект в Автокаде. Экономический расчет
5) Спорт-комплекс (архитектурный план). Скачать проект AutoCAD.

Рис. 10 – Проект AutoCAD “Спорт-комплекс”
6) Проект AutoCAD “Колокольня”. Скачать рабочие чертежи Автокада.

Рис. 11 – Готовый проект Автокад “Колокольня”
7) Коттедж в Автокаде: курсовая работа. Скачать проект AutoCAD.

Рис. 12 – Бесплатные проекты Автокад. Курсовой “Коттедж”
8) Проекты 6-и коттеджей в формате *.DWG. Скачать чертежи Автокада.

Рис. 13 – Коттеджи в Автокаде. Готовые проекты dwg.
9) Классический коттедж с красивым фасадом. Скачать готовый проект Автокад.

Рис. 14 – Проекты домов в Автокаде. Скачать готовые чертежи.

Рис. 15 – Дом в Автокаде. Коттедж “классический”.

Рис. 16 – Скачать проекты домов Автокад.
11) 5-ти этажный дом в Автокаде (3D модель). Скачать готовый проект Автокад.

Рис. 17 – Скачать 3D модель дома в AutoCAD.
Что входит в проект жилого дома?
Типовой проект дома – это строительство «под ключ» по готовому дизайну и с архитектурной отделкой. Вы просто выбираете понравившийся вариант элитного жилья в каталоге под свои требования.
В проект жилого дома входит:
- детальный план застройки;
- чертежи внутренней планировки;
- сопроводительная документация;
- 3d-визуализация фотографического качества готового дома;
- подробные описания с указанием материалов, расчетов и стоимости.
Составлением проектов занимаются опытные инженеры и архитекторы. Документация дает клиенту детальное представление о будущей постройке – по предоставленной информации заказчик может решить, отвечает ли жилье его требованиям. При необходимости специалисты нашей компании проконсультируют по всем вопросам и подберут проект.
Внутренняя планировка дома
Планировка должна выполняться не абы как, а с учетом необходимых требований, норм и удобства использования. Чтобы добиться удачного и оптимального расположения помещений, можно обратиться к каталогам готовых проектов, просмотреть бесплатные презентации на сайтах строительных и проектных организаций, скачать чертежи деревянных домов.
Кстати, просмотр планировок в домах из различных материалов: блоков, бревна, каркасно-щитовых, кирпичных — также позволит понять полную картину, почерпнуть свежие идеи и найти подходящие решения.

Проект кирпичного дома с гаражом на два автомобиля
- Спальни родителей и детей не должны находиться в прямом соседстве. Лучше, если их будут разделять какие-либо помещения или пространства;
- Санузел не стоит располагать рядом со спальными комнатами. Лучше обеспечить небольшое удаление объекта, например, через коридор;
- Если частный дом одноэтажный, то санузлы лучше сделать раздельными; если этажей в доме два, то можно на первом разместить совмещенный, а на втором — раздельный. Располагать их лучше друг над другом;
- Вход в котельную должен быть из дома. Единственный или второй. В это помещение необходимо перенести все счетчики и контрольные датчики;
- Лестницу лучше обустраивать около внешней стены, а пространство под ней задействовать под кладовую. Существенная экономия на отоплении, а также возможность использования места в качестве хранения зимних заготовок;
- Прихожая в частном доме должна быть большая, здесь будет храниться больше вещей, чем в квартире. К тому же часть прихожей съест тамбур, он обязателен в любом строении: одноэтажном или двухэтажном, кирпичном, деревянном, каркасном доме 4х6. Это способ предотвратить прямое попадание холодного воздуха в дом;
- Прихожая частного дома должна быть расположена таким образом, чтобы через нее приходилось ходить как можно реже. Это позволит дольше сохранять чистоту и порядок в доме.
Не забудьте предусмотреть наличие окон и дверей в проекте. Большие оконные проемы и значительное их количество — это максимально естественное освещение в доме, эстетичный внешний вид, иллюзия пространства и свободы. А обратная сторона медали — большие теплопотери и высокие затраты на отопление. К тому же поддерживать все окна в должном состоянии круглый год — серьезная задача.
Что учитывать при составлении схемы дома
Чтобы составить план, необходимо определиться с этажностью здания, вариантом крыши, экстерьером, включая количество оконных проемов, балконов и лоджий. Следует предусмотреть возможность обустройства террасы и мансарды. Все эти элементы нужно отображать в продольном и поперечном разрезах, вместе с конструктивными качествами и нужными материалами. Учитываются особенности участка под дом, в том числе расположение, ориентацию по сторонам света, рельеф, особенности почвы. От них зависит оптимальная внутренняя планировка, в первую очередь расположение помещений. Количество и конфигурация комнат подбирается с учетом количества жильцов и возраста каждого из них.
Главным приоритетом при составлении схемы является функциональная полезность. Следует также предусмотреть помещения для размещения строителей и других работников. На плане желательно оставить место про запас: когда-то оно может «заполниться» дополнительным гаражом или гостевым домиком.
Некоторые функциональные элементы, которые лучше предусмотреть заранее:
- мастерская;
- кабинет;
- оранжерея;
- зимний сад;
- сауна;
- бассейн;
- тренажерный зал.
Что входит в эскизный проект
Отдельно стоит рассказать про состав эскизного проекта. Что же вы получаете, заплатив специалистам приличную сумму?
- Пояснительная записка. Здесь содержится копия технического задания, перечень и очередность работ, выполняемых на объекте, оптимальные строительные и отделочные материалы, а также список информационного и программного обеспечения, которое использовалось при составлении эскиза.
- План фасада. Серьезные компании предлагают несколько вариантов фасада, чтобы клиент выбрал именно тот, который в полной мере отвечает всем его требованиям.
- Планы этажей, чердака, варианты обустройства подвала. Площадь и форма каждого помещения, толщина и местоположение перегородок – все это формирует внутренний вид вашего будущего дома.
- Иллюстрации. Изображение дома изнутри и снаружи. Для создания иллюстраций используются специальные программы, позволяющие разработать 3D изображения коттеджа, которые значительно упрощают восприятие и проведение дальнейших работ.
- Чертежи поперечного и продольного разреза здания. Их количество зависит от требований клиента.
- Кровля. Все расчеты по устройству кровли при использовании выбранного заказчиком материала.
- Генплан участка. Общий чертеж земельного участка, вид сверху. Здесь показано расположение как самого дома, так и всех остальных построек.
- Фундамент. Местоположение, форма и размер фундамента, а также расчеты, подтверждающие его необходимость.
Как видите, эскиз здания представляет собой очень сложный комплекс информации, не располагая которой просто нельзя приступать к строительству дома вашей мечты.
Размеры помещений и их количество
Чтобы сделать чертежи своими руками, необходимо представлять себе планировку, которая будет у частного дома мечты, а для этого нужно знать количество необходимых помещений с точными размерами.
У каждого понятие о комфорте коттеджей свое. Это зависит от потребностей семьи, их благосостояния и статуса. Кому-то размер и зонирование пространства комнаты в 12 квадратных метров покажется оптимальным, а для кого-то будет неприемлемо тесным.

Планировка двухэтажного коттеджа с гаражом
| Помещение | Количество в шт. | Площадь в м2 |
| Спальня | 3 | 12 |
| Гостевая комната | 1 | 12 |
| Гостиная | 1 | 25–30 |
| Кухня | 1 | 15–20 |
| Санузел | 2 | 6 |
| Кладовка | 1 | 10 |
| Гардеробная | 1 | 9 |
| Лестница | 1 | 8 |
| Котельная | 1 | 6 |
| Прихожая + тамбур | 1 + 1 | 12 |
| Общая площадь | 150–160 |
Таким образом, оптимальный размер пятна застройки составляет дом 9 х 9 метров, если дом — двухэтажный или одноэтажный с мансардой.

Планировка дома с мансардой 9×9
дом с основанием 8 х 8
Разбивку по этажам можно сделать следующим образом. На второй этаж поднять все спальни и гостевую комнату, гардеробную, один санузел и лестничную площадку. Все оставшиеся помещения должны найти свое место на первом этаже.
Когда площадь помещений готова, можно приступать к поиску удачного расположения их на этаже. Для этого стоит учесть, что длина всех строительных материалов кратна шести. Поэтому, чтобы избежать их перерасхода или излишних обрезков, лучше выбирать дом с размерами 9 х 9; 6 х 9; 9 х 12.

Планировка коттеджа 9×12
Эскизное проектирование дома (стадия ЭП)
Архитектурный эскизный проект (АП)
Эскизный проект дома – это первичные архитектурно-дизайнерские решения, являющиеся основой для разработки строительной документации. На этапе эскизного проектирования создаётся стилистическая концепция будущего коттеджа, определяется максимально функциональная и удобная планировка.
После создания эскизного проекта, по желанию заказчика, выполняется 3D визуализация будущего коттеджа в разных цветовых решениях фасада:




Состав альбома эскизного проекта
- Ведомость чертежей
- Пояснительная записка. Пояснительная записка включает в себя краткое описание дома (архитектурный стиль, общая площадь, этажность), перечень помещений по этажам, краткое описание элементов отделки фасада дома, особенность климатической зоны, для которой проектируется коттедж, основные конструктивные решения и материалы).
- Генеральный план дома. На генеральном плане отражено общее размещение дома на участке и расположение прилегающих пристроек, схематичное расположение подвода к дому инженерных коммуникаций (канализация, водоснабжение, ливневая канализация, электроснабжение, газоснабжение).
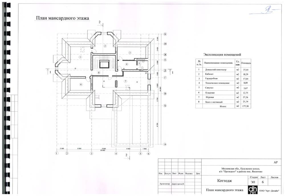
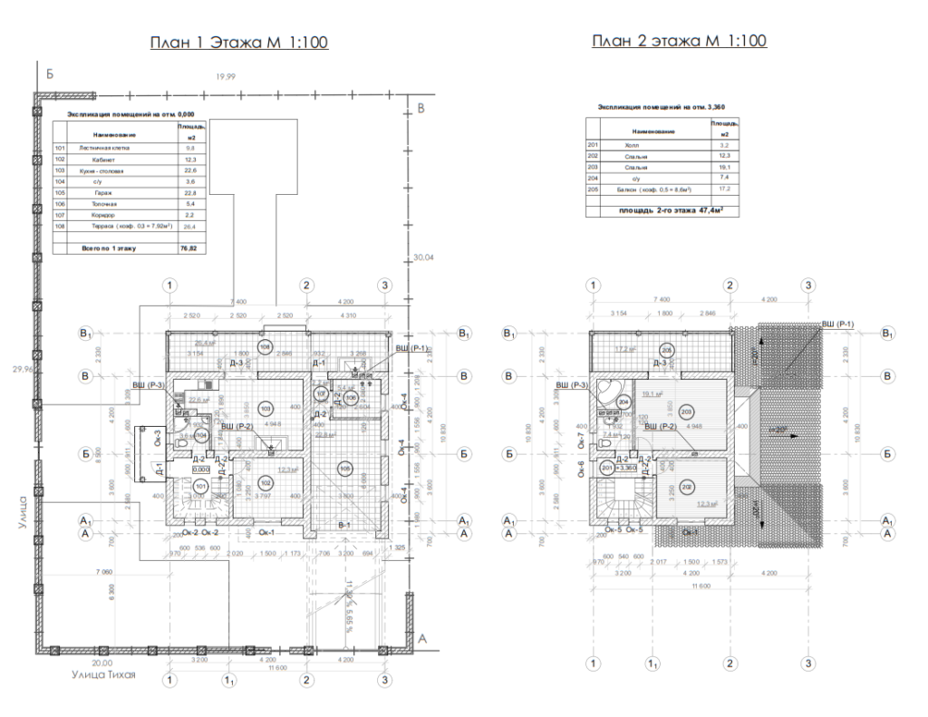
- Поэтажные планы с экспликацией помещений. На поэтажных планах указывается метраж основных помещений, расстояние между стенами, расположение дверных и оконных проёмов.
- План кровли. На плане кровли указываются поверхности кровли со сторонами и углами наклона. Отмечается высота верхней точки каждой поверхности.
- Фасады в осях. На чертежах отражён вид основных декоративных элементов фасада, а также высота их расположения.
- Разрезы. На разрезах видно высоту межэтажных перекрытий, лестниц, оконных и дверных проёмов.
Образцы чертежей









Важно отметить, что архитектурный эскизный проект ещё не регламентирует, а лишь намечает архитектурно-планировочные решения и основные технико-экономические показатели. Более конкретно конструктивные особенности дома определяются при разработке рабочего проекта, поэтому строить по эскизному проекту нельзя
Однако его достаточно для согласования проекта строительства дома в соответствующей комиссии.
Рисуем проект будущего дома
Когда все подготовительные работы закончены, чужие удачные проекты одноэтажных и двухэтажных домов, кирпичных, из блоков, бревна, планировки домов из бруса, каркасников, просмотрены основательно, тогда можно приступать к созданию своего детища. Чтобы нарисовать понятный план дома, лучше взять миллиметровку или разлинованную в клетку бумагу. Это поможет выдержать масштаб и увидеть наглядно будущую планировку.
Разместить на получившемся квадрате или прямоугольнике все дверные и оконные проемы, а затем согласно собственным представлениям, разбить оставшуюся площадь на соответствующие помещения. При этом не стоит забывать учитывать толщину несущих стен и внутренних перегородок.
Когда план первого этажа готов, можно приступать к прорисовке второго уровня. Если же строение одноэтажное, то ваша работа на этом окончена.

Эскиз планировки первого этажа двухэтажного дома
По старинке: рисуем план карандашом на бумаге
Создание эскиза с помощью карандаша на листе бумаги предваряет проектирование жилища на компьютере. Эскиз является лишь наброском, примерным планом, не более
Почему же так важно начать с простого макета:
- чтобы понять, чего именно вы хотите от будущего дома;
- при необходимости можно добавить или удалить комнату или целый этаж;
- чтобы представить, как строение будет расположено на участке относительно других объектов;
- определить, сколько в доме будет окон и дверей;
- предусмотреть при необходимости место для печи;
- решить, как будет отапливаться сооружение.
План дома на бумаге до проектирования на компьютере поможет понять: каким должно быть строение, все ли комнаты нужны, где будут стоять двери и окна
Нарисуйте на бумаге внешний и внутренний виды дома. При составлении внутреннего проекта здания своими руками учтите такие моменты:
- первый этаж должен включать тамбур и прихожую;
- туалет, ванная и кухня должны располагаться рядом друг с другом – это упростит проводку коммуникаций;
- хорошо, если в доме не будет проходных комнат – они не слишком удобны в эксплуатации;
- на первом этаже нужно предусмотреть кладовую и гардеробную – это удобно в использовании;
- сразу же прорисуйте окна и двери;
- на втором этаже туалет и ванная нужны не всегда, а только в том случае, если площадь здания более 100 квадратных метров, а количество жильцов – от 5 человек и более;
- если вы проектируете дом 3D самостоятельно и собираетесь возводить его тоже сами, остановитесь на двускатной крыше. Ее легче всего построить, а под ней можно сделать мансарду;
- возьмите за правило: хозяйственные помещения нужно располагать с северной стороны, а жилые – с южной или восточной. Днем внутрь через окна будет попадать солнечный свет, который нагреет воздух в помещении. Так можно сэкономить на отоплении;
- сразу же на плане укажите размеры дома.
О том, как правильно выполнить чертеж дома на бумаге, смотрите в видеоролике:

























































