Преимущества дома из кирпича
Блоки из обожженной глины люди используют для строительства не одно тысячелетие. И сегодня в разных городах Европы и Азии можно увидеть кирпичные дома, построенные 100, 200 и даже 500 лет назад.
Долговечность — главное преимущество этого материала. По сроку службы он уступает только камню. Но постройка кирпичного дома обойдется намного дешевле, чем каменного. Невысокая стоимость при большой надежности — второй плюс.
Третьим преимуществом является то, что блоки имеют небольшой размер и из них можно выложить не только прямую стену, но и декоративные элементы типа эркеров, круглых башен, арок. Это дает возможность реализовать самые смелые проекты домов и архитектурные решения в них.
Еще одним полезным свойством материала является возможность его демонтажа без необходимости разбирать большие участки стен. Например, для создания нового оконного или дверного проема достаточно раздробить цемент и вынуть целые кирпичи. Их потом можно использовать в строительстве, причем качество блоков не изменится.
Еще одним преимуществом является наличие на рынке кирпича пустотелого и поризованного кирпича. Воздушные карманы в нем являются удерживающими тепло элементами, поэтому дома, построенные из таких блоков, практически не нуждаются в дополнительном утеплении.
Стандартные размеры блоков позволяют рассчитать точную смету расходов еще на этапе, когда создаются проекты домов.
Планировка дома с мансардой, верандой, гаражом, цокольным этажом
Так как дома в один этаж нередко являются ограниченными в пространстве, владельцы всеми способами пытаются изменить ситуацию. Среди самых распространенных вариантов можно выделить:
- Цокольный этаж, где возможно размещение комнат для жилья, а также других помещений – бильярда, спортзала, кладовки и т.д.;
- Существуют планы домов 8х10 с мансардой, которая предполагается для использования в качестве гостевой, спальни, детской комнаты;
- Односкатная крыша для дальнейшего преобразования в чердак, навесную площадку;
- Плоская крыша – создание зоны для отдыха;
- Гараж, мастерская;
- Веранда.

Дом и веранда с односкатной крышей Источник instrumennts.ru
Дом в один этаж с цоколем
Такой дом, имеет дополнительный этаж, наполовину углубленный под землю. Он может быть занят под различные хозяйственные нужды:
- Установки системы водоснабжения.
- Системы отопления.
- Прачечной.
- Зоны для глажки и сушки.
- Место для консерваций.
- Подходит для использования в качестве кладовки, чулана.
Дом с мансардой
План дома 10 на 8 с мансардой, это тот же одноэтажный дом, только чердачный этаж полностью оборудуется под жилые комнаты. Для обустройства комнаты под крышей понадобятся дополнительные отделочные работы и проведение системы отопления. В зависимости от размеров, мансарда может использоваться как спальня или холл, на ней без особых трудностей можно разместить санузел с ванной или кладовку, например план дома 10 на 10 с мансардой добавляет значительно больше пространства, соответственно и дополнительных помещений на ней можно разместить больше.
Гараж
Планировка гаража в одноэтажном доме возможна как в симметричной, так и вполне свободной формах. Первый вариант предполагает отделения гаража от жилых помещений – для чего используются мощные капитальные стены.
Внешний вид таких территорий условно делиться на жилую и гаражную часть.
Свободное распределение – примыкание одной из наружных стен к сооружению гаража.

Отдельно стоящий гараж – проект с мансардой Источник instrumennts.ru
Планировка двухэтажных домов
На планировке двухэтажных домов можно проводить бесчисленное множество экспериментов и проектов внутренней планировки домов. Так вы сможете придать жилищу собственную индивидуальность.

Зачастую, на нижнем этаже размещают комнаты для приема гостей и использования всей семьей. Логично, ведь тогда посещать ваш дом удобно.









А на верхнем этаже уже находятся личные комнаты. Туда вы будете подниматься только спать, отдыхать и наслаждаться царской жизнью в особняке.

Планируя будущую постройку не забудьте выбрать необходимый тип лестницы, ведь она занимает много лишнего пространства. Лучше всего отдавать свое предпочтение винтовой конструкции.

Самые удачные планировки в примерах
Проект дома может быть каким угодно. Некоторые умельцы своими руками создают особенные постройки, которые потом становятся достопримечательностями. Выбор проекта зависит от площади участка и целевого использования. Если территория небольшая, можно поставить небольшой двухэтажный домик, если же площади хватает, допустимо возведение одноэтажного строения. Но перед началом всех работ нужно ответить на несколько вопросов:
- Этот дом для постоянного или сезонного проживания?
- Сколько в нем будет размещаться людей? От этого зависит количество этажей и спален, а также санузлов.
- Нужны ли будут подвал и мансардное пространство?
Небольшой дом из брусаИсточник stroydom-comfort.ru
Площадь постройки составляет 64 кв. м., примерно, такие же размеры имеет двух- или трехкомнатное жилье в многоквартирном строении. Если возвести двухэтажную постройку, площадь увеличится, получится полноценное жилище для большой семьи.
В обязательном порядке стоит выделить место для обустройства:
- прихожей;
- кухни;
- гостиной комнаты;
- одной или двух спален;
- ванной комнаты.
Планировка жилого домаИсточник koffkindom.ru
Второй этаж строения поможет значительно увеличить жилую площадь, но это влечет дополнительные затраты денежных средств. Стоит помнить о том, что дом регулярно нуждается в обслуживании для нормального функционирования систем отопления, водо- и газоснабжения.
Двухэтажное строение 8 на 8Источник stroisam2.ru
Удачный мансардный проект позволяет разместить на первом уровне прихожую, санузел, просторную кухню-гостиную и одну спальню. Второй уровень предназначен для 3 спален площадью 12 и 11 кв. м. и холла.
Если в настоящий момент возведение дополнительного этажа не запланировано, но в будущем такая возможность не исключается, стоит предусмотреть возведение другого этажа. Для этого необходимо сделать более прочный фундамент и качественное перекрытие.
Жилой дом 8 на 8Источник proekton.com
При возведении одноэтажного дома следует определять количество личных комнат, отталкиваясь от состава семьи, дополнительное помещение можно оставить для гостей. На одном этаже вместится прихожая, ванная комната, кухня, гостиная и спальни. Последние должны быть наиболее удалены от входа.
Одноэтажная постройка с удобным расположением комнатИсточник roomester.ru
Кухонное помещение и гостиная могут быть обособленными или объединенными. С точки зрения удобства, кухня-гостиная – наиболее удачный вариант. В ней больше свободного пространства, отсутствие перегородок позволяет разместить большой кухонный гарнитур, барную стойку, обеденную и гостиную зону.
В случае разделения данных функциональных зон места в комнатах будет меньше, но во время приготовления пищи запах не распространится по дому.
План дома с отдельной кухней и гостинойИсточник dachmir.ru
В представленном варианте одноэтажного дома при входе расположена терраса 10 кв. м., далее идет тамбур 3,4 кв. м., санузел 5 кв. м., спальня 10,4 кв. м., холл 7 кв. м., гостиная 7 кв. м. и кухня 12,5 кв. м. На кухне достаточно места для размещения полноценного углового кухонного гарнитура и столовой зоны. В летнее время прием гостей можно осуществлять на террасе. Такая планировка идеально подходит для проживания семейной пары.
Постройка с удобной планировкойИсточник brusbanya.ru
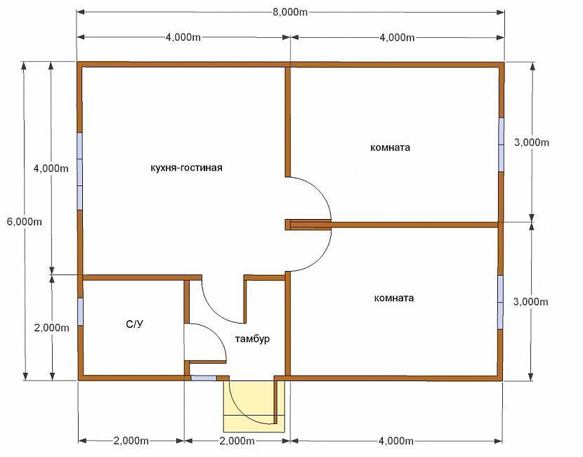
Планировка дома 8 на 8 состоит из кухни-гостиной в левом крыле, холла, тамбура и санузла в центре здания и двух спален в правой части постройки. Площадь кухни гостиной составляет 18 кв. м., этого достаточно для вместительного кухонного гарнитура с барной стойкой или столом- островом, полноценной столовой и просторной зоны для приема гостей. Перед домом находится терраса, здесь можно обустроить место для отдыха.
Просторный двухэтажный жилой домИсточник ibuildrussia.ru
Двухэтажная постройка может иметь два входа. На первом уровне находится гостиная, туалет, ванная и кухня-столовая, а также холл и две прихожие. Лестница ведет на второй уровень, здесь расположен небольшой коридор, рядом с ним кладовая, далее идут 2 спальни, санузел и зал.
В двухэтажном доме основные зоны, а также комната для приема гостей нужно располагать на первом уровне. Второй предназначен для комнат членов семьи.
Дачный дом 8х10
Дом, который будет использоваться в качестве временного жилища, например, на даче, вполне допускает открытую планировку даже при наличии только одного этажа. Это означает, что внутри будет минимум перегородок и максимум свободного пространства. При этом все необходимые помещения будут сохранены.
Подробная планировка дачного дома размером 8х10
Почти 80 квадратных метров площади соответствует размерам четырехкомнатной квартиры. Но проект дачного дома с периметром 8х10 подразумевает иную философию расположения помещений.
Частный дом напрямую сообщается с улицей, у него нет отапливаемого подъезда и отдельных изолированных коридоров.
В некоторых проектах он может отсутствовать, если крыльцо совмещено с крытой и застекленной верандой.
Значительное внимание в доме уделяется гостиной. Дачный дом предназначен для отдыха, здесь собирается все семья, приезжают друзья и родственники
А значит, гостиная должна быть очень просторной и комфортной.
Она занимает центральное место в планировке дома. Чтобы добиться ощущения свободы и пространства, внутри помещения отказываются от лишних перегородок. В этом случае гостиная совмещается с кухней.
Планировка дома 10×8 с совмещенными кухней и гостиной
Помещение становится больше по площади, а для удобства визуально делится на функциональные зоны.
Дом 8х10 обязательно должен вместить в себя спальни. Их количество должно соответствовать количеству постоянных посетителей. Также неплохо предусмотреть одну — две гостевых комнаты.
Учитывая, что дом используется не для постоянного проживания, а для временного, то спальни могут делиться не по количеству человек, а по функциональности: родительская спальня и детские спальни. Также возможно разделение спален по гендерному признаку: для мальчиков и для девочек. Это особенно актуально для многодетных семей.
Проект дома предусматривает наличие санузлов. Для такой площади вполне будет достаточно одной комнаты. Это могут быть как раздельные, так и совмещенные помещения. Вместо ванны можно установить душевую кабину – она займет меньше места и в данных условиях будет более востребована.
Проект дома 8×10 с подробной планировкой
Дополнительно план дачного дома 8х10 должен предусматривать подсобные помещения: кладовую, гардеробную, хозяйственную комнату. Если в доме предусмотрено котельное отопление, то отдельное помещение для оборудования.
Самые удачные планировки в примерах
Проект дома может быть каким угодно. Некоторые умельцы своими руками создают особенные постройки, которые потом становятся достопримечательностями. Выбор проекта зависит от площади участка и целевого использования. Если территория небольшая, можно поставить небольшой двухэтажный домик, если же площади хватает, допустимо возведение одноэтажного строения. Но перед началом всех работ нужно ответить на несколько вопросов:
- Этот дом для постоянного или сезонного проживания?
- Сколько в нем будет размещаться людей? От этого зависит количество этажей и спален, а также санузлов.
- Нужны ли будут подвал и мансардное пространство?

Небольшой дом из брусаИсточник stroydom-comfort.ru
Площадь постройки составляет 64 кв. м., примерно, такие же размеры имеет двух- или трехкомнатное жилье в многоквартирном строении. Если возвести двухэтажную постройку, площадь увеличится, получится полноценное жилище для большой семьи.
В обязательном порядке стоит выделить место для обустройства:
- прихожей;
- кухни;
- гостиной комнаты;
- одной или двух спален;
- ванной комнаты.

Планировка жилого домаИсточник koffkindom.ru
Второй этаж строения поможет значительно увеличить жилую площадь, но это влечет дополнительные затраты денежных средств. Стоит помнить о том, что дом регулярно нуждается в обслуживании для нормального функционирования систем отопления, водо- и газоснабжения.

Двухэтажное строение 8 на 8Источник stroisam2.ru
Удачный мансардный проект позволяет разместить на первом уровне прихожую, санузел, просторную кухню-гостиную и одну спальню. Второй уровень предназначен для 3 спален площадью 12 и 11 кв. м. и холла.
Если в настоящий момент возведение дополнительного этажа не запланировано, но в будущем такая возможность не исключается, стоит предусмотреть возведение другого этажа. Для этого необходимо сделать более прочный фундамент и качественное перекрытие.

Жилой дом 8 на 8Источник proekton.com
При возведении одноэтажного дома следует определять количество личных комнат, отталкиваясь от состава семьи, дополнительное помещение можно оставить для гостей. На одном этаже вместится прихожая, ванная комната, кухня, гостиная и спальни. Последние должны быть наиболее удалены от входа.

Одноэтажная постройка с удобным расположением комнатИсточник roomester.ru
Кухонное помещение и гостиная могут быть обособленными или объединенными. С точки зрения удобства, кухня-гостиная – наиболее удачный вариант. В ней больше свободного пространства, отсутствие перегородок позволяет разместить большой кухонный гарнитур, барную стойку, обеденную и гостиную зону.
В случае разделения данных функциональных зон места в комнатах будет меньше, но во время приготовления пищи запах не распространится по дому.

План дома с отдельной кухней и гостинойИсточник dachmir.ru

Постройка с удобной планировкойИсточник brusbanya.ru
Планировка дома 8 на 8 состоит из кухни-гостиной в левом крыле, холла, тамбура и санузла в центре здания и двух спален в правой части постройки. Площадь кухни гостиной составляет 18 кв. м., этого достаточно для вместительного кухонного гарнитура с барной стойкой или столом- островом, полноценной столовой и просторной зоны для приема гостей. Перед домом находится терраса, здесь можно обустроить место для отдыха.

Просторный двухэтажный жилой домИсточник ibuildrussia.ru
Двухэтажная постройка может иметь два входа. На первом уровне находится гостиная, туалет, ванная и кухня-столовая, а также холл и две прихожие. Лестница ведет на второй уровень, здесь расположен небольшой коридор, рядом с ним кладовая, далее идут 2 спальни, санузел и зал.
В двухэтажном доме основные зоны, а также комната для приема гостей нужно располагать на первом уровне. Второй предназначен для комнат членов семьи.
Правила планировки
Мансардные коттеджи обычно делят на две основные зоны. Весь первый этаж отводится под зону дневного пребывания, а мансарда становится спальной зоной. При правильном распределении жилого пространства дом данного типа сможет вместить среднюю семью из 4-6 человек.
Мансарда дома 8 на 10 идеальна для размещения двух или трех спален, а также ванной комнаты и гардеробной. Если нужна еще спальня, ее размещают на первом этаже.
Планировка мансарды с тремя спальнямиИсточник indizajn.ru
Гостевая зона дома 8 10 обычно планируется открытой, с минимальным количеством перегородок. В ней гостиная, кухня, столовая и холл объединены в одно просторное помещение. Однако могут быть и исключения. Например, холл может быть запланирован отдельным изолированным помещением. В этом случае он будет выступать буферной зоной, снижающей теплопотери дома.
В некоторых случаях изолированной проектируется кухня. Это делается для того, чтобы избавить гостиную и другие помещения первого этажа от кухонных запахов и высокой влажности, которая возникает в процессе приготовления пищи. При этом столовая обычно располагается в одном помещении с кухней, но и в гостиной тоже может быть выделено место под обеденный комплекс.
Обеденная зона в помещении гостинойИсточник architizer.com
Стоит отметить, что такие габариты дома позволяют размещать на первом этаже довольно просторную гостевую зону и еще одно жилое помещение. Это может быть спальня, гостевая комната, кабинет или что-либо еще.
Строительные материалы
Основные финансовые издержки во время строительства приходятся на возведение коробки дома. К выбору стройматериалов необходимо подойти взвешенно, чтобы в будущем не пришлось заниматься постоянным ремонтом и утеплением
На что нужно обращать внимание при выборе стройматериала
- Теплоизоляция. Холодные стены – это увеличенные затраты на отопление. Избежать этого можно с помощью утеплителя.
- Трудозатраты на возведение коробки — укладка кирпичных стен потребует намного больше времени и сил, нежели панельных или блочных. Стены из профилированного бруса сложить намного быстрее, чем из бревна.
- Цена. Снизить стоимость дома можно не только выбором стройматериала, но и технологией закладки фундамента.
- Чертежи дома с котельной размером 10х8 для первого этажа должны содержать схему технических и жилых помещений, активной и пассивной зоны.
Чтобы иметь возможность ориентироваться среди множества стройматериалов, необходимо ознакомиться с их характеристиками хотя бы вкратце.
Пенобетон
Блоки из пеноблоков и газобетона отличаются низкой теплопроводностью, поэтому превосходно держат тепло. Этим блоки обязаны своей пористой структуре. Стена из одного слоя блоков толщиной 30-40 сантиметров аналогична кирпичной многослойной кладке. Кроме того, они прекрасно выдерживают перепады влажности и температуры, поддерживают внутри дома хороший микроклимат.
Пеноблоки не способны гнить и разрушаться, если выполнены с соблюдением технологий. С блоками удобно работать — они с лёгкостью поддаются распилу обычной ножовкой. Крупногабаритные «кирпичи» позволяют экономить на цементе для раствора.


Брус
Брусом называют бревно, прошедшее специальную обработку и полностью готовое к строительству, или же склеенные между собой ламели. Имеет квадратное, прямоугольное или закруглённое сечение. На профилированном брусе предусмотрены пазы и выступы для соединения. Также устроены косые срезы для стока стекающей влаги. Дом из клееного бруса можно построить своими силами.
К преимуществам относятся высокая экологичность, оптимальная цена, теплопроводность, износостойкость и привлекательный внешний вид даже без отделки. Недостатки домов из бруса – это длительная усадка, пожароопасность, отсутствие сопротивляемости к поражению древоточцами, плесени. В процессе высыхания могут образовываться трещины. Брус требует обработки защитными инсектицидными и противопожарными составами.


Каркасно-щитовой из СИП-панелей
Каркасные технологии — лидеры в скорости возведения домов и стоимости, что объясняет высокий спрос на такие дома. Подобные постройки собраны из многослойных СИП-панелей. Изделия настолько легки, что технология позволяет поднять дом в 2–3 этажа без дополнительных конструкций усиления.
Плюсы каркасных домов – это высокая теплоизоляция, небольшой вес, скорость возведения, хорошая шумоизоляция, всесезонность монтажа и простой метод сборки, справиться с которой могут два человека. К минусам относится полная герметичность — материал не «дышит», из-за чего возникает необходимость в принудительной вентиляции, а также повышенная горючесть панелей.


Кирпич
Кирпич до недавнего времени был одним из самых популярных стройматериалов, с его помощью возводили дома со стенами различной толщины. Великолепно сочетается с любым кровельным покрытием и обладает множеством прочих достоинств.
Преимущества кирпичных построек:
- простота кладки;
- возможность оставить отверстия для вентиляции и коммуникаций;
- полная пожаробезопасность;
- повышенная устойчивость к атмосферному влиянию в виде осадков;
- хорошая звукоизоляция;
- не требуется дополнительная облицовка.
Недостатки:
- нуждается в утеплении;
- способен впитывать влагу, замерзающую в зимний период;
- обладает значительным весом, из-за чего обязателен ленточный фундамент.


Двухэтажные дома 6х6: особенности планировки
Выбирая двухэтажный каркасный дом 6 на 6, проекты можно пересматривать долго, ведь такая конструкция дает больше возможностей, касаемо планировки жилья. Проекты домов с двумя этажами отличаются друг от друга количеством комнат, их расположением и многими другими параметрами. Двухэтажные дома размером 6х6 являются наиболее оптимальным вариантом для проживания семьи из четырех человек и более, по сравнению с одноэтажной конструкцией.
Пример планировки двухэтажного каркасного дома 6х6Источник uralleskom.ru
Стоимость двухэтажного каркасного дома будет выше, чем одноэтажного, ведь, по сути, придется построить два дома 6х6, только на одном фундаменте и с одной крышей. Существенные затраты уйдут на лестницу. Но не стоит расстраиваться, ведь дом будет каркасным, а значит и фундамент под него, и сама конструкция в целом обойдутся намного дешевле, чем строение, например, из кирпича.
Двухэтажный каркасный дом 6х6Источник himcomp.ru
Планировка каркасного двухэтажного дома зачастую предполагает расположение помещений общего пользования на первом этаже, как правило, это прихожая или холл, гостиная, кухня и санитарный узел. Размещение санузла на первом этаже объясняется не только тем, что помещением будут пользоваться гости, которые приходят в дом, но и стоимостью системы коммуникации.
Двухэтажный каркасный дом 6х6 с маленьким крыльцомИсточник himcomp.ru
Второй этаж чаще всего состоит из комнат для отдыха членов семьи, гостевых помещений, в которых будут периодически останавливаться родственники и друзья. Личный кабинет тоже лучше расположить на верхнем этаже. При желании на втором этаже делают второй санузел.
Балкон хоть и не является обязательным атрибутом двухэтажного дома, но его наличие в значительной степени повышает комфорт проживания. Именно на балконе можно высадить цветы в летнее время, организовать удобное место для чтения на свежем воздухе и наслаждаться потрясающими видами заката.
Пример планировки двухэтажного каркасного дома 6х6Источник himcomp.ru
каркасный дом 6на6 Двухэтажный каркасный дом 6х6 с балкономИсточник himcomp.ru
Зонирование
Для начала необходимо определиться, в каком месте участка будет располагаться ваше жилье. От этого будет зависеть и планировка, и более удачное расположение окон и входа. Лучше, когда окна в спальне выходят на восток, в гостиной на юг, а в кухне на запад.
Далее, посчитайте, на скольких человек должен быть спроектирован план. Исходя из этого, специалист рассчитает необходимое количество спален. Не забывайте о гостевой спальне, если у вас часто задерживаются родственники и друзья на ночь. По вашему желанию архитектор может сконструировать строение с изолированными комнатами или же с минимумом перегородок.
Межэтажная лестница
Лестница, ведущая на мансарду является важным элементом планировки дома. В целом планировочное решение во многом зависит от того, где именно решено установить лестницу. Нижняя лестничная площадка может находиться в холле или в помещении, объединяющем гостиную, кухни и столовую. В первом случае мы получаем многофункциональный холл и возможность подниматься на мансарду не проходя через гостиную. Лестница при таком решении не нарушает дизайн гостиной, и пространство под ней можно смело использовать как кладовую.
Холл загородного дома с лестницей в мансардный этаж Источник pallcare.ru
Если на первом этаже предусматривается не только гостевая зона, но еще и дополнительная спальня, или, например, кабинет, то места для размещения просторного холла с лестницей может не хватить. Поэтому в домах 8х10 с мансардой, типовые проекты которых наиболее популярны, холл запланирован очень компактным. При этом лестница начинается в гостиной-столовой.
Лестница на мансарду из гостиной открытой планировки Источник pinterest.com
В мансарде лестница, как правило, выходит в лестничный холл, расположенный по центру этажа. Это наиболее рациональный вариант планировки, позволяющий удобно расположить личные комнаты спальной зоны. Лестничный холл выполняет функцию коридора, разделяющего комнаты и санузлы.
Лестничный холл мансарды Источник fav-expo.ru
Внутренняя отделка
Комфортное проживание зависит от расположения дома на участке, расположения коммуникационных сетей, продуманной планировки и внутренней отделки. Стены, потолок и пол напрямую зависят от материала дома. В малоэтажном строительстве используются различные материалы: дерево, кирпич, пеноблоки, камень. И каждый имеет свои плюсы и минусы.
В загородном строительстве чаще всего отдают предпочтение брусу. Деревянный дом является экономически выгодным и экологически безопасным для будущих жильцов. Немаловажным фактором также является продолжительный срок эксплуатации, а современные технологии обработки древесины делают жизнь в таком доме комфортнее.
Наиболее экономичными считаются коттеджи из газоблоков. А шлакоблоки позволяют возвести дом в короткие сроки и с небольшими затратами. Кирпич же – это своего рода классика, которая не требует особых представлений.
Работая над обустройством частного дома, важно помнить несколько правил:
- Комнаты и помещения должны быть связаны общими сетями. К примеру, кухню и санузел лучше расположить по соседству. Это уменьшит затраты на инженерные и коммуникационные сети и позволит избежать дополнительных затрат.
- Планировка дома и расположение комнат и помещений напрямую зависит от сторон света. Окна гостиной должны выходить на южную или восточную стороны. А гостиной и детской – на южную сторону. С северной стороны лучше проектировать глухую стену или подсобные нежилые помещения с маленькими окошками. Такое размещение жилых помещений благоприятно влияет на микроклимат и естественную вентиляцию в доме.
- Окна с выходом на закрытую террасу или теплый балкон разумнее сделать французскими с остеклением до пола. Это позволит наполнить комнату естественным светом и воздухом.
- В одноэтажном дачном доме можно использовать электрический котел с небольшой мощностью, теплый пол и камин в самой большой комнате в качестве комплексной системы отопления.
- Ветряные потоки должны направляться в скаты крыш, чтобы снизить нагрузку на конструкцию при сильных порывах. И желательно обустроить навесы и плоскости для защиты стен от ветра и обильных осадков.

























































